casa-a schiera, plurifamiliare
Venafro,
post inizio XVII - ante seconda metà-XX
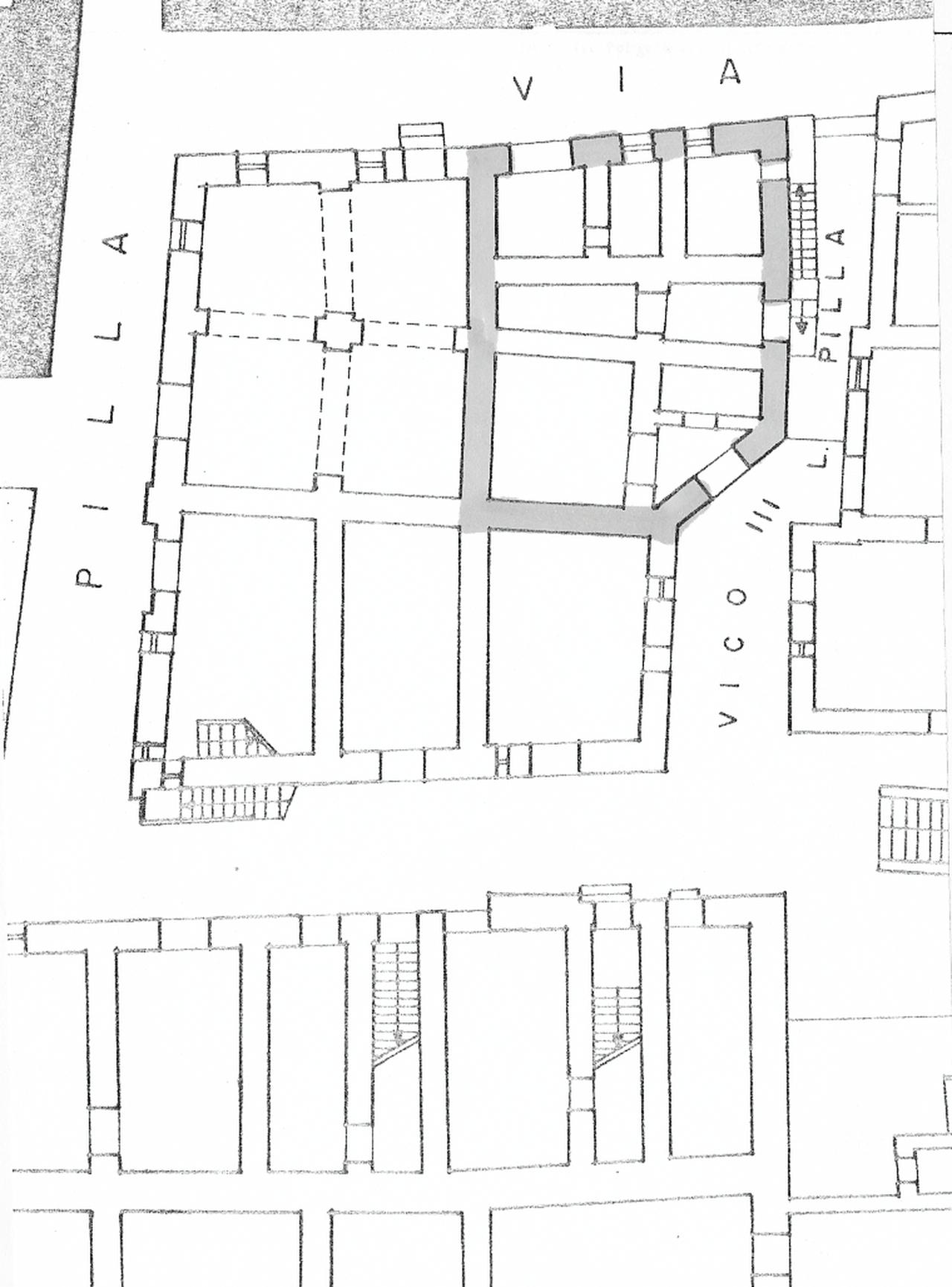
L'edificio si sviluppa su tre livelli compreso il piano terra. La pianta ha impianto irregolare ed è di forma trapezia. La muratura, intonacata, è in pietra calcarea giuntata con malta di calce. La copertura è a doppio spiovente con manto in coppi alla romana. All'interno cinque abitazioni
- OGGETTO casa-a schiera, plurifamiliare
- AMBITO CULTURALE Maestranze Seicentesche
- LOCALIZZAZIONE Venafro (IS) - Molise , ITALIA
- INDIRIZZO Vico Leopoldo Pilla 2,4,6, Venafro (IS)
- TIPOLOGIA SCHEDA Architettura
-
CONDIZIONE GIURIDICA
proprietà privata
- CODICE DI CATALOGO NAZIONALE 1400007462
- ENTE COMPETENTE PER LA TUTELA Soprintendenza per i Beni Architettonici e Paesaggistici del Molise
- ENTE SCHEDATORE Soprintendenza per i Beni Architettonici e Paesaggistici del Molise
- DATA DI COMPILAZIONE 1983
-
DATA DI AGGIORNAMENTO
2019
-
DOCUMENTAZIONE ALLEGATA
scheda di catalogo (1)
-
DOCUMENTAZIONE GRAFICA
planimetria catastale (1)
planimetria catastale (2)
- LICENZA METADATI CC-BY 4.0