Convento
Gambatesa,
- 1586/11/07 ante
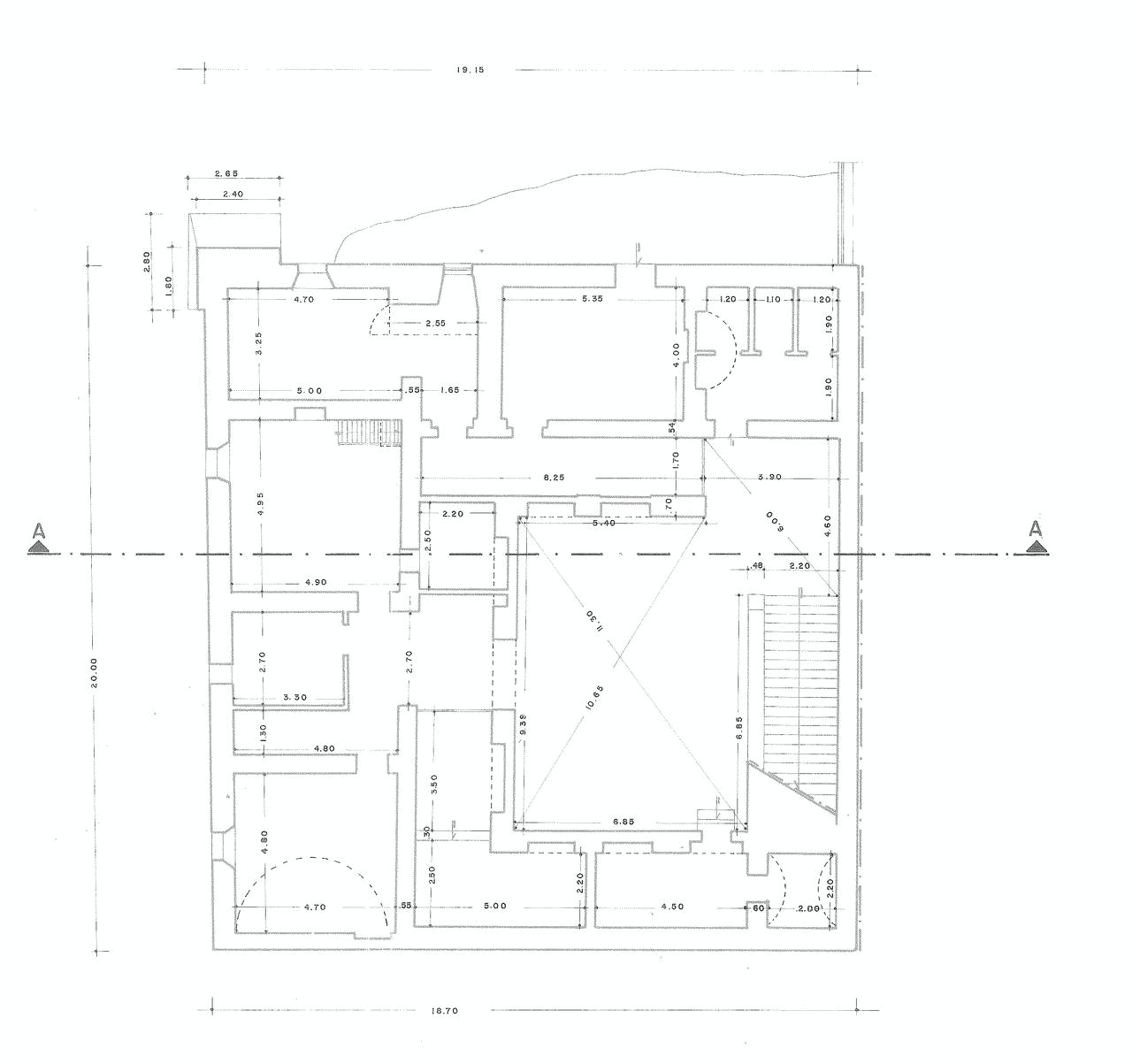
La struttura portante del convento è costituita di una cinta muraria esterna, una seconda cinta disposta ad L ed una terza a C che definisce il porticato che perimetra il cortile. In adiacenza al convento è posta la chiesa la cui altezza supera il convento di quattro metri. La chiesa è ad aula con struttura in pietra intonacata e copertura a due falde; la facciata presenta un semplice portale con al di sopra una finestra rettangolare con architrave a sesto ribassato. La facciata termina con un timpano triangolare; al centro dei due spioventi un campanile a vela
- OGGETTO convento e chiesa
- AMBITO CULTURALE Maestranze Seicentesche
- LOCALIZZAZIONE Gambatesa (CB) - Molise , ITALIA
- INDIRIZZO Via San Nicola 101, 103, Gambatesa (CB)
- TIPOLOGIA SCHEDA Architettura
-
CONDIZIONE GIURIDICA
proprietà mista pubblica/ecclesiastica
- CODICE DI CATALOGO NAZIONALE 1400011213
- ENTE COMPETENTE PER LA TUTELA Soprintendenza per i Beni Architettonici e Paesaggistici del Molise
- ENTE SCHEDATORE Soprintendenza per i Beni Architettonici e Paesaggistici del Molise
- DATA DI COMPILAZIONE 1988
-
DATA DI AGGIORNAMENTO
2017
-
DOCUMENTAZIONE ALLEGATA
scheda di catalogo (1)
scheda di catalogo (2)
scheda di catalogo (3)
-
DOCUMENTAZIONE GRAFICA
planimetria catastale (1)
planimetria catastale (2)
planimetria catastale (3)
planimetria catastale (4)
planimetria catastale (5)
planimetria catastale (6)
planimetria catastale (7)
planimetria catastale (8)
planimetria catastale (9)
planimetria catastale (10)
planimetria catastale (11)
planimetria catastale (12)
planimetria catastale (13)
- LICENZA METADATI CC-BY 4.0