Azienda agricola Centorame
Campomarino,
post XV - ante inizio-XIX
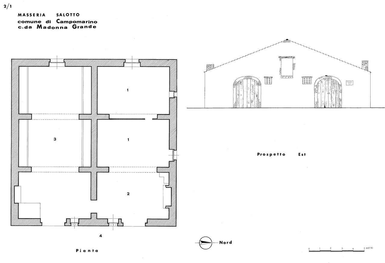
Fabbricato rurale adibito a stalla e fienile, a pianta rettangolare diviso in due parti di dimensione uguale. La muratura è di mattoni pieni e la copertura a capanna. La facciata principale presenta aperture simmetriche con archi ribassati. Oltre ai locali deputati all'attività agricola una unità abitativa
- OGGETTO azienda agricola-monofamiliare
- AMBITO CULTURALE Maestranze Ottocentesche
- LOCALIZZAZIONE Campomarino (CB) - Molise , ITALIA
- INDIRIZZO Via Tratturo 71, Campomarino (CB)
- TIPOLOGIA SCHEDA Architettura
-
CONDIZIONE GIURIDICA
proprietà privata
- CODICE DI CATALOGO NAZIONALE 1400041671
- ENTE COMPETENTE PER LA TUTELA Soprintendenza per i Beni Architettonici e Paesaggistici del Molise
- ENTE SCHEDATORE Soprintendenza per i Beni Architettonici e Paesaggistici del Molise
- DATA DI COMPILAZIONE 1978
-
DATA DI AGGIORNAMENTO
1994
2017
-
DOCUMENTAZIONE ALLEGATA
scheda di catalogo (1)
-
DOCUMENTAZIONE GRAFICA
planimetria catastale (1)
planimetria catastale (2)
planimetria catastale (3)
planimetria catastale (4)
planimetria catastale (5)
- LICENZA METADATI CC-BY 4.0