casa-a schiera
Pesche,
post XVII - ante XVII
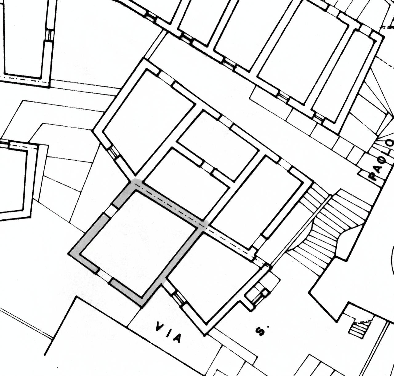
L’edificio è in pianta di forma trapezoidale e si sviluppa su due livelli di piano, di cui uno disimpegnato da una botola con scala in legno. La facciata Sud ha una porta rettangolare e due piccole finestre e, più in alto, una finestra rettangolare. La facciata Ovest ha un portoncino con arco a tutto sesto sovrastato da una finestra e termina con una inclinazione che segue la falda di copertura. La muratura portante è in pietrame del tipo a sacco e la copertura è del tipo ad una falda
- OGGETTO casa-a schiera
- AMBITO CULTURALE Maestranze Seicentesche
- LOCALIZZAZIONE Pesche (IS) - Molise , ITALIA
- INDIRIZZO Via San Paolo, Pesche (IS)
- TIPOLOGIA SCHEDA Architettura
-
CONDIZIONE GIURIDICA
proprietà privata
- CODICE DI CATALOGO NAZIONALE 1400075312
- ENTE COMPETENTE PER LA TUTELA Soprintendenza per i Beni Architettonici e Paesaggistici del Molise
- ENTE SCHEDATORE Soprintendenza per i Beni Architettonici e Paesaggistici del Molise
- DATA DI COMPILAZIONE 1982
-
DOCUMENTAZIONE ALLEGATA
scheda catalogo (1)
-
DOCUMENTAZIONE GRAFICA
planimetria catastale (1)
planimetria catastale (2)
planimetria catastale (3)
- LICENZA METADATI CC-BY 4.0