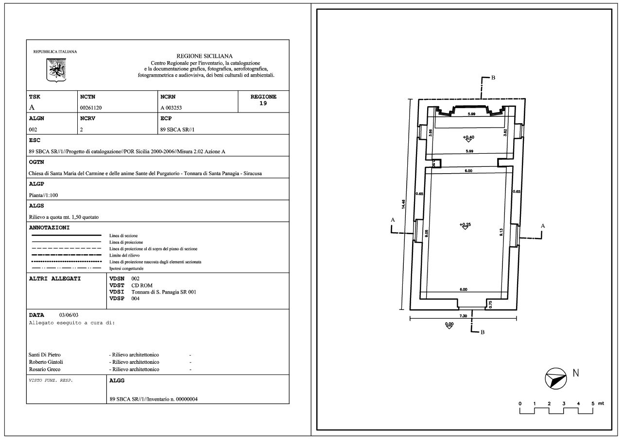
Chiesa di Santa Maria del Carmine e delle anime del Purgatorio
Siracusa,
1655/02/14 - 1675/04/30
Gaetano Cristina (notizie 1855-1928)
notizie 1855-1928
Edificio in muratura continua in blocchi di pietrame informe ammorsata agli angoli con copertura a tetto a due falde
- OGGETTO chiesa
- AMBITO CULTURALE Maestranze Locali
-
ATTRIBUZIONI
Gaetano Cristina (notizie 1855-1928): interventi di ristrutturazione e direzione lavori
- LOCALIZZAZIONE Siracusa (SR) - Sicilia , ITALIA
- TIPOLOGIA SCHEDA Architettura
-
CONDIZIONE GIURIDICA
detenzione Ente pubblico territoriale
- CODICE DI CATALOGO NAZIONALE 1900261120-1
- ENTE COMPETENTE PER LA TUTELA Centro Regionale per l'Inventario e la Catalogazione
- ENTE SCHEDATORE Centro Regionale per l'Inventario e la Catalogazione
- DATA DI COMPILAZIONE 2003
-
DATA DI AGGIORNAMENTO
2020
- LICENZA METADATI CC-BY 4.0