edificio-di servizio
Siracusa,
1675/04/30 - 1843/00/00
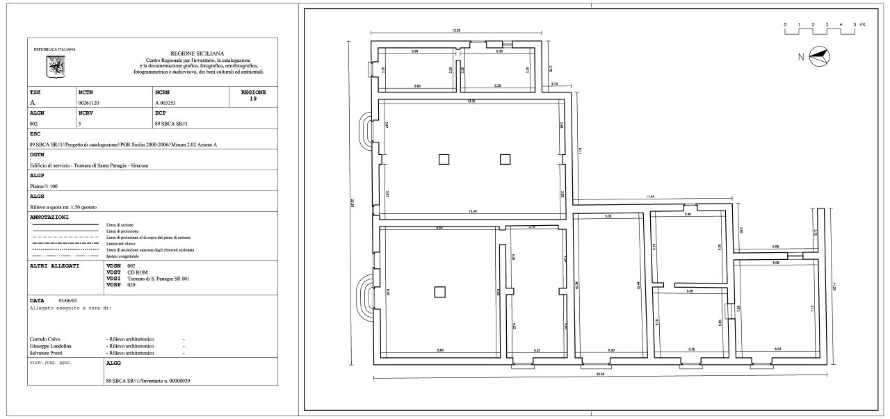
Edificio in muratura continua in blocchi di pietrame informe con tramezzi in laterizio, con pilastri di sostegno della copertura, non più esistente, ed archi in blocchi squadrati di calcare
- OGGETTO edificio-di servizio
- AMBITO CULTURALE Maestranze Locali
- LOCALIZZAZIONE Siracusa (SR) - Sicilia , ITALIA
- TIPOLOGIA SCHEDA Architettura
-
CONDIZIONE GIURIDICA
proprietà Ente pubblico territoriale
- CODICE DI CATALOGO NAZIONALE 1900261120-4
- ENTE COMPETENTE PER LA TUTELA Centro Regionale per l'Inventario e la Catalogazione
- ENTE SCHEDATORE Centro Regionale per l'Inventario e la Catalogazione
- DATA DI COMPILAZIONE 2003
-
DATA DI AGGIORNAMENTO
2020
- LICENZA METADATI CC-BY 4.0