case-a schiera
Pesche,
post XVIII - ante XIX
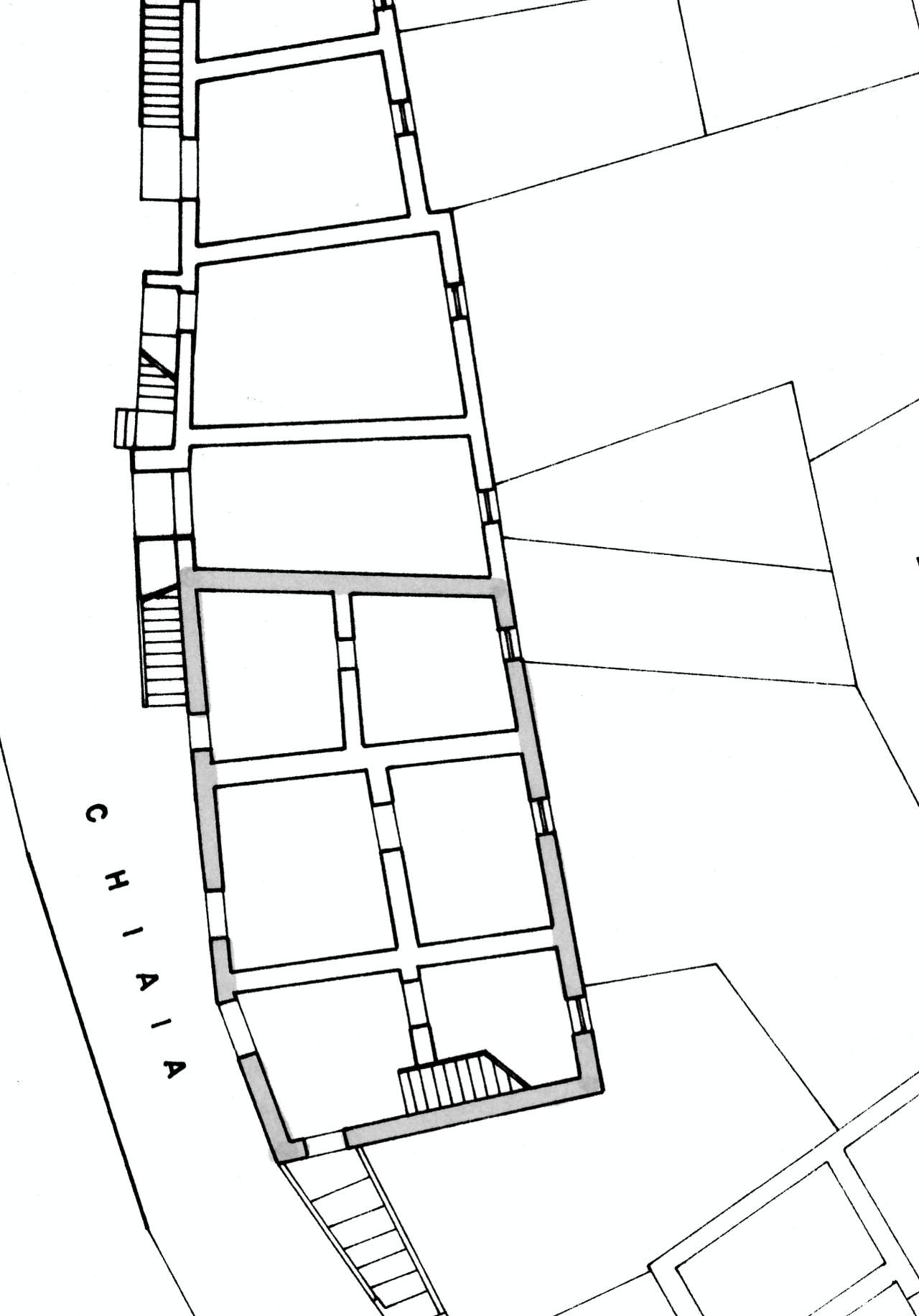
L'edificio è costituito di tre corpi di fabbrica in appoggio tra loro. L'accesso avviene sia da una scala esterna che da una interna. Le facciate rivelano un chiaro carattere settecentesco, mediante una regolare e simmetrica distribuzione delle aperture dei due piani superiori e la sistemazione di due archi nel punto di angolo, costituenti una sorta di loggia che corrisponde al vano della scala interna. Il piano terra presenta due grandi aperture che denunciano una trasformazione dei locali al piano terra (autorimessa) che originariamente erano adibiti a stalle. La muratura portante è in pietrame del tipo a sacco e la copertura è del tipo ad una falda
- OGGETTO case-a schiera
- AMBITO CULTURALE Maestranze Settecentesche
- LOCALIZZAZIONE Pesche (IS) - Molise , ITALIA
- INDIRIZZO Via Chiaia, Pesche (IS)
- TIPOLOGIA SCHEDA Architettura
-
CONDIZIONE GIURIDICA
proprietà privata
- CODICE DI CATALOGO NAZIONALE 1400075243
- ENTE COMPETENTE PER LA TUTELA Soprintendenza per i Beni Architettonici e Paesaggistici del Molise
- ENTE SCHEDATORE Soprintendenza per i Beni Architettonici e Paesaggistici del Molise
- DATA DI COMPILAZIONE 1982
-
DOCUMENTAZIONE ALLEGATA
scheda catalogo (1)
-
DOCUMENTAZIONE GRAFICA
planimetria catastale (1)
planimetria catastale (2)
planimetria catastale (3)
- LICENZA METADATI CC-BY 4.0