Masserie Vignone - Mottillo - Parente
Sepino,
post seconda metà XVIII - ante fine-XX
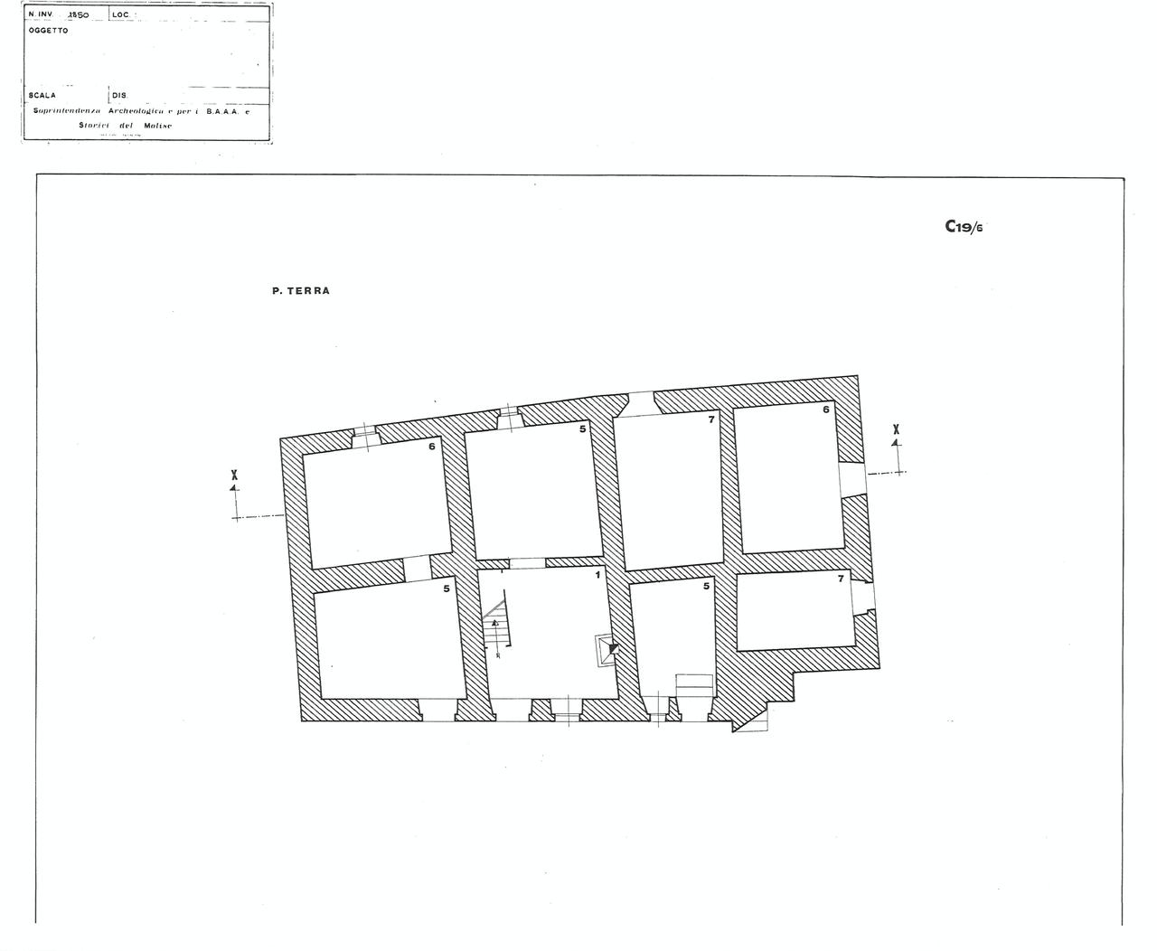
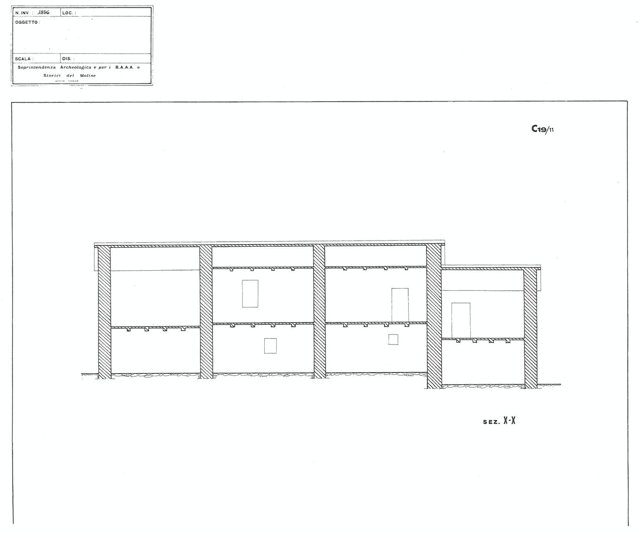
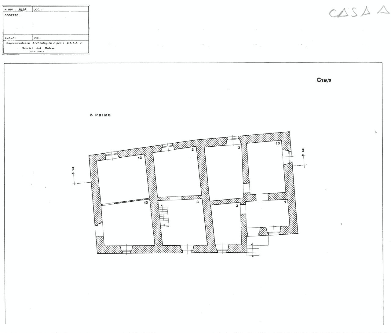
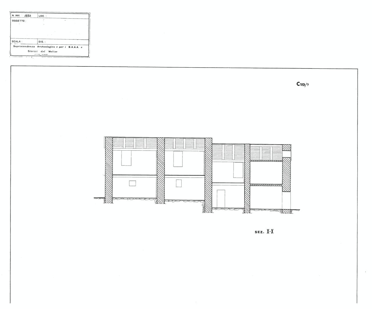
L’aggregato rurale è composto da più corpi di fabbrica a blocco semplice articolati su due livelli di piano e murature in pietra a vista e solai in legno. La copertura è a doppia falda con manto in coppi di laterizio. In alcuni edifici sono presenti scale esterne in pietra. Nell'agglomerato edilizio due unità abitative, 3 rimesse e due unità collabenti
- OGGETTO agglomerato-edilizio, rurale
- AMBITO CULTURALE Maestranze Settecentesche
- LOCALIZZAZIONE Sepino (CB) - Molise , ITALIA
- INDIRIZZO Strada Comunale Colli, Sepino (CB)
- TIPOLOGIA SCHEDA Architettura
-
CONDIZIONE GIURIDICA
proprietà privata
- CODICE DI CATALOGO NAZIONALE 1400076130
- ENTE COMPETENTE PER LA TUTELA Soprintendenza Archeologia, belle arti e paesaggio del Molise
- ENTE SCHEDATORE Soprintendenza Archeologia, belle arti e paesaggio del Molise
- DATA DI COMPILAZIONE 1979
-
DATA DI AGGIORNAMENTO
2019
-
DOCUMENTAZIONE ALLEGATA
scheda di catalogo (1)
-
DOCUMENTAZIONE GRAFICA
planimetria catastale (1)
planimetria catastale (2)
planimetria catastale (3)
planimetria catastale (4)
planimetria catastale (5)
planimetria catastale (6)
planimetria catastale (7)
planimetria catastale (8)
planimetria catastale (9)
planimetria catastale (10)
planimetria catastale (11)
planimetria catastale (12)
planimetria catastale (13)
- LICENZA METADATI CC-BY 4.0