complesso-edilizio, rurale
Sepino,
post inizio XVIII - ante ultimo quarto-XX
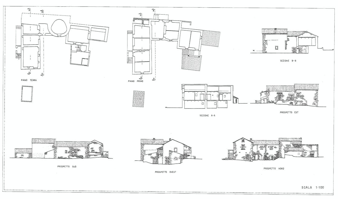
Il complesso edilizio è costituito dall’aggregazione di più unità abitative, in pianta di forma irregolare, la muratura portante è in pietra sbozzata a corsi irregolari, i solai di piano sono in legno e le coperture del tipo a doppia falda con manto in coppi di laterizio. Gli accessi ai piani superiori avvengono da scale esterne in pietra
- OGGETTO complesso-edilizio, rurale
- AMBITO CULTURALE Maestranze Settecentesche
- LOCALIZZAZIONE Sepino (CB) - Molise , ITALIA
- INDIRIZZO Contrada Altilia, Sepino (CB)
- TIPOLOGIA SCHEDA Architettura
-
CONDIZIONE GIURIDICA
proprietà Stato
- CODICE DI CATALOGO NAZIONALE 1400076141
- ENTE COMPETENTE PER LA TUTELA Soprintendenza Archeologia, belle arti e paesaggio del Molise
- ENTE SCHEDATORE Soprintendenza Archeologia, belle arti e paesaggio del Molise
- DATA DI COMPILAZIONE 2019
-
DOCUMENTAZIONE GRAFICA
planimetria catastale (1)
planimetria catastale (2)
planimetria catastale (3)
planimetria catastale (4)
- LICENZA METADATI CC-BY 4.0